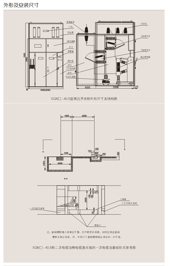
XGN-40.5型固定式高低壓成套開關柜
特點:
XGN口- 40.5型固定式金屬封閉開關設備(以下簡稱開關柜)。系三相交流50Hz單母線及單母線帶旁路系統的戶內成套設備。柜內配有ZN口-40.5真空斷路器,作為40.5KV交流系統接受和分配電能之用。開關柜具有安全聯鎖裝置、防誤性能,運行安全可靠。真空滅弧室免維護。
詳情介紹
型號:XGN-40.5型固定式高低壓成套開關柜
高低壓成套開關柜的主要技術參數:
開關柜所裝配的一次元件包括真空斷路器、電流互感器、隔離開關、電壓互感器、熔斷器、避雷器、電力變壓器等,在本產品的裝置條件下,仍滿足各自產品的技術性能。
高低壓成套開關柜的使用環境條件
1、海拔不超過1000m.
2、周圍空氣溫度不超過,上限+40C. 下限-15C,高寒區- 259C。
3、相對濕度不超過90%(+250C)。
4、地震裂度不超過8度。
5、沒有火災、爆炸危險、嚴重污染、化學腐蝕及劇烈振動的場所。




XGN-40.5型固定式高低壓成套開關柜相關信息
看了又看